2

I am building a simple antenna from this article 7db for 7 bucks.

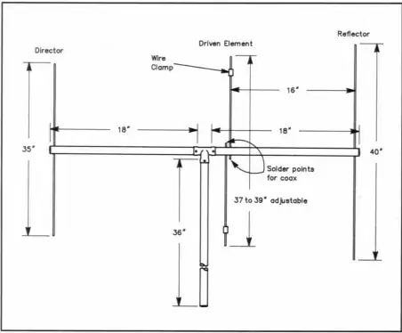
I am confused on the measurements for the antenna: enter image description here

It looks like there are two pieces of 18 inch PVC pipes connected to a T fitting.

Wouldn't the spacing in the T fitting vary based on the size of the PVC pipe? I have 3/4 inch pipe. Would it work for this?

Second, where exactly do I place the director and the reflector beams? Is it just as far out as the drill can possibly go without cutting into the edge of the pipe?

I guess it is fine them not telling me for the reflector beam, but for the director, there is no measurement from the driven element. How far should I place the director from the driven element?

Skyler 440
  • 7,600
  • 7
  • 49
  • 89
  • 1
    A notable thing about this design: the "matching network" looks like it's really just a "tuning adjustment". While it's simple and cheap and will work fine, I bet you will find significant common-mode currents on the feedline, which means the feedline is part of the antenna. That can really degrade the directivity and gain of the antenna, since the feedline is essentially an omnidirectional vertical. See Using a balun with a resonant dipole. – Phil Frost - W8II Mar 02 '14 at 16:39
  • 1
    There are a number of online calculators that will give you measurements for this, try a search for "3 element beam calculator". The results will be slightly different than the above article, but if you desire to experiment, as the author did, with moving the director further away from the suggested location then you may be pleasantly surprised at the results, depending on exactly how you need to use the antenna. – Adam Davis Mar 04 '14 at 19:35
  • 1
    The schematic conflicts with the picture regarding the solder points as well. The illustration shows soldering at the 1/4 inch tips, but the photo shows connection on the other side of the tube. Given how the end result differs so much from the design, it's a wonder if it even works at all. – KN4JAG Feb 16 '18 at 18:14

2 Answers2

1

The first thing to remember is that if you are off by 1/4" or 1/2" from the perfect measurement, it's not the difference between working and not working. It might be slightly less efficient...or not. There are so many variables in antenna performance that even building exactly to spec may not mean you get the same results. You may get better, or worse.

Next, the article specifies drilling the holes 1/4" or 1/2" from the end of the PVC. PVC is a little brittle, so I would lean towards the 1/2" mark. Next you don't need the measurement of the director to the driven element. Place the director at the end of the boom (minus 1/2"). The driven element is measured off the reflector in this design.

Lastly, the article was also talking about 3/4" pipe, so everything should work out fine. Last thing to know is that PVC will break down over time in UV light, not a big deal, it would take a few years, but it will get chalky and then (more) brittle. Options are to paint it or to not worry about it. If you are still in the hobby by that time, you will likely have replaced the antenna anyway.

Also, you can use a boom that's longer than specified to give you a little more meat to drill on. If it were 2" longer on both ends, it would not affect the performance of the antenna at all. Though you would have to measure the location of the director as if the boom half were still 18" as shown.

WPrecht
  • 6,482
  • 21
  • 43
1

One thing to note with the original article is that the schematic conflicts with the picture of the completed aerial - you'll note that the driven element(s) is clearly closer to the director (shorter) than the reflector in the snapshot. I actually built it as per the picture as that is what would have been tested and I can say that the Yagi works really well with 1" PVC. I rivetted the elements to the boom with a single rivet per element. No more loose elements. Very happy with this design and a flat 1:1 SWR across the 2 metre band with excellent directivity (F/B).

Janos
  • 11
  • 1