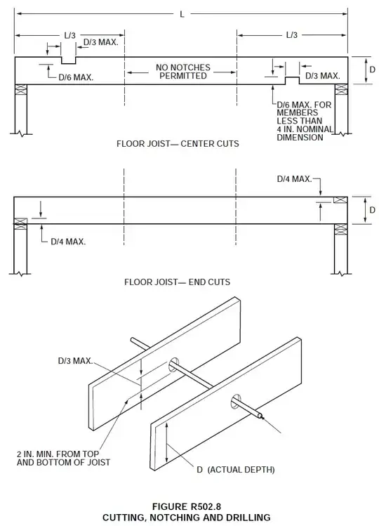
I already know that a hole bored in a sawn lumber joist cannot be within 2" of any edge or any other notch or hole. And that the hole can only be a maximum of 1/3 the depth of the member (International Residential Code 2012 R502.8). Given all this, is this a code compliant joist?

For more detail on the code used to determine the dimensions mentioned above, see this answer.
After doing more research, I've found sources that recommend not placing holes closer to each other than the maximum hole size. For example, in a 2x10 holes should be at least 3 5/64" away from each other.

