I will like to redo the existing Ethernet (and maybe COAX) wiring in my home. I have looked for the most ideal path from the basement through the floors into the attic and then drop into the second floor. Other alternatives required running beside (not inside) the air return duct in the wall cavity, long runs alongside power cables, or runs through exterior walls, none of which is ideal. So I decided to run through the bath closets that line up vertically on both floors. I could run along a wall in the closet but then that will require drilling through the ceramic floor tiles and cutting notches in each closet shelf. I figured it's best to run inside the wall instead since the wall patchwork in the closet does not need to be perfect.
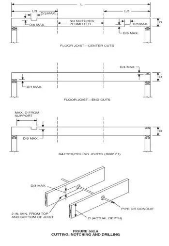
I started to drill (3/4" paddle bit) before I realized that the bath closet walls sit on double joists. Perhaps this is because the baths are almost in the center of the house. Also the drill depth seemed more than I expected (extra stacked wallplate?), which is why I stopped and re-examined the basement (I had my orientation wrong before I started and did not realize the double joists were right underneath).
So I am trying to figure out the best way to go about this. I noticed that what previous contractors had done to run wires in the cavities above the double joists was to drill diagonally(?), then vertically. However, I expect that to be a lot easier for a single power cable and harder for a bunch of 8-14 data cables.
I found this thread but it did not describe exactly how the user solved their problem. I own regular tools (drills, impact driver, fish tape, etc.) but nothing contractor grade or "overkill". I am up to the task of drilling, doing electrical work and wall patching, but I want to avoid violating codes or compromising structural integrity.


